
از دیگر کاربردهای تیرآهن، اسکلت بندی سازه است. لازم به ذکر است تیرآهن، ایستایی و تعادل سازه را به خوبی حفظ می کند. بنابراین کیفیت ساخت، نوع و سایز تیرآهن به کار برده شده می تواند نقش بسزایی در کارایی و استحکام سازه ایفا کند. به همین منظور برای خرید تیرآهن می بایست به یکسری نکات مهم و اساسی دقت داشت و بر اساس آن ها نیز اقدام به خرید نمود. در این محتوا تلاش شده تا راهنمای خرید تیرآهن به صورت جامع بررسی و نکات آن بیان گردد تا با اطلاع دقیق به بررسی قیمت لحظه ای تیرآهن پرداخت و سپس بر اساس نیاز خرید به صرفه انجام داد.
لازم است قبل از خرید تیرآهن، نوع، سایز، تعداد، کیفیت و حتی برند تیرآهن (در صورت نیاز) مشخص گردد. تیرآهن ها در انواع متفاوتی تولید می شوند. نوع تیرآهن در زمان خرید با توجه به مشخصات سازه، شکل تیرآهن و همچنین اندازه آن انتخاب می شود. به همین دلیل، لازم است قبل از خرید تیرآهن با انواع تیرآهن و کاربرد آنها آشنا شوید.
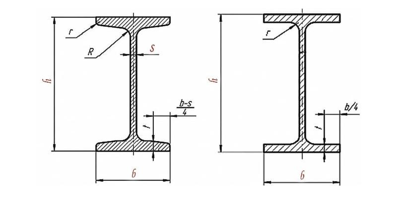
نکته اول: آشنایی کامل با انواع تیرآهن و مشخصات آن ها (انواع استاندارد تیرآهن)
تیرآهن ها در طول زمان با تغییرات بسیاری همراه بوده است و توانسته به اشکال امروزه ساخته شده و به مصرف برسند. تیرآهن های موجود در بازار به دو شکل مقطع I و H هستند و در چهار استاندارد زیر تولید و عرضه می شوند. بین این استانداردها نیز دو نوع تیرآهن IPB یا تیرآهن هاش و تیرآهن IPE رایج ترین و پرطرفدارترین تیرآهن در ایران محسوب می شوند. در کل انواع تیرآهن را می توان به صورت زیر تعریف نمود:
● تیرآهن IPE
● تیرآهن INP
● تیرآهن IPB یا هاش
● تیرآهن لانه زنبوری
تیرآهن هاش یا H:
تیرآهن هاش که به خاطر شکل و ساختار فیزیکی که دارد به این نام شناخته می شود و اصولا دارای بال های پهن می باشد. اگر بخواهیم این تیرآهن را به انواع مختلف نیز تفکیک کنیم باید بگویم تیرآهن هاش دارای انواع تیرآهن IPB سبک (HEA) و سنگین (HEB) است که هر کدام از این نوع ها می توانند بسته به ساختار و وزنی که دارند در سازه های مختلف به کار برده شوند. تفاوت این دو مدل در جان تیر است. در مدل تیرآهن هاش سنگین، جان تیرآهن ضخیم تر است و در نتیجه وزن بیشتری نیز خواهد داشت.

تیرآهن I :
تیرآهن I نیز همانند تیرآهن هاش، از نظر ظاهر و ساختار شبیه به حرف انگلیسی I است و به نسبت تیر هاش از بال های باریک تری برخوردار است. این نوع تیرآهن در ایران به وفور به کار برده می شود و در اکثر پروژه های ساخت و ساز، این تیرآهن نقش پررنگی دارد. از انواع دیگر این نوع تیرآهن می توان به تیرآهن های IPE و تیرآهن INP اشاره کرد که در صنایع مختلفی به کار گرفته می شوند.
تیرآهن لانه زنبوری:
از دیگر انواع تیرآهن، تیرآهن لانه زنبوری است که دارای برش هایی در داخل جان تیر است. اصولا برای ساخت این نوع تیرآهن از تیر IPE استفاده می گردد و بدین ترتیب بعد از برشکاری های لازم، تیر به صورت لانه زنبوری امروزه در می آید. از تیر لانه زنبوری برای ساخت و ساز استفاده می گردند؛ به خصوص اینکه وجود حفره ها در این تیر باعث شده عبور دادن سیم ها و کابل ها به راحتی انجام گیرد. به همین خاطر قیمت تیرآهن لانه زنبوری در بازار فولاد برای صاحبان پروژه های عمرانی از اهمیت بسزایی برخوردار است.
تا این قسمت از محتوا با انواع تیرآهن آشنا شدیم و دانستیم که هریک چه ویژگی هایی دارند اما حال باید بررسی کرد برای خرید تیرآهن باید به چه نکاتی دقت داشت. این راهنمای خرید شامل چند مرحله قبل ، حین و پس از خرید است. با ما همراه باشید.
نکته دوم: پیش از خرید سایز، طول، وزن تیرآهن به صورت دقیق بررسی گردد.
یکی از نکاتی که باید در زمان خرید به آن دقت داشت، این است که حتما باید با کارشناس این حوزه صحبت کرد تا بر اساس نیاز صنعت و کسب و کار خود نوع مناسب تیرآهن و با طول، سایز و وزن مناسب انتخاب و خریداری کنید.
تیرآهن ها اصولا در کارخانه به صورت دقیق و بر اساس سایز 12 متر تولید می گردند اما لازم است بدانید تیرآهن هایی با طول های دیگر نیز وجود دارند. از این رو باید مشخص نمود که تیرآهن با چه طولی و برای چه کاری نیاز دارید. همچنین سایز تیرآهن ها از جمله نکاتی است که باید بر اساس آن خرید صورت گیرد. تیرآهن ها در سایز های مختلفی تولید می شوند که هر یک بسته به نوع تیرآهن متفاوت خواهد بود به عنوان مثال تیرآهن IPE از سایز 8 الی 60 و تیرآهن هاش نیز از سایز 8 الی 100 تولید و به بازار عرضه می گردد.
وزن تیرآهن ها نیز بسته به سایز و طول آن ها، دچار نوسان می گردد و هر چه سایز تیرآهن بیشتر شود، وزن آن نیز بیشتر خواهد شد.

نکته سوم: بررسی برند کارخانه تولید کننده بر قیمت تیرآهن
کارخانه هایی که محصول تیرآهن را تولید می کنند، از استانداردها و تجهیزات های مختلفی بهره می برند و بر اساس کیفیت تولید آن ها، قیمت تیرآهن نیز می تواند از رنج متفاوتی برخوردار باشد. از این رو برند کارخانه هایی همچون ذوب آهن که محصولات تولیدی آن ها از کیفیت بالایی برخوردار است، به نسبت برندهای موجود در بازار، از رنج قیمتی بالاتری برخوردار است.
نکته چهارم: انتخاب مرکز معتبر برای خرید
امروزه با توجه به نوساناتی که در بازار فولاد رخ می دهد، خرید از یک مرکز معتبر می تواند از هزینه های جاری را به شدت بکاهد و در پایان نیز محصولی با کیفیت را نیز خریداری کرده باشید. در بازار فولاد راه های مختلفی برای خرید تیرآهن وجود دارد که هریک نیز مزیت ها و معایب به خود را دارند. خریداران می توانند از طریق مراجعه به بورس، بنگاه های فولادی و شرکت های بازرگانی خرید خود را انجام دهید. البته خرید از بورس برای همه افراد امکان پذیر نیست و می بایست از طریق دیگر خرید تیرآهن را انجام دهند. البته پیشنهاد ما مراجعه به شرکت های بازرگانی است. این شرکت ها می توانند با ارائه بهترین قیمت به خریداران، خریدی به صرفه را رقم بزنند.
نکته پنجم: بررسی لحظه ای قیمت تیرآهن
پس از اینکه نوع تیرآهن و سایز مورد نظر خود را انتخاب کردید، حال باید به دنبال بهترین و مناسب ترین قیمت باشید تا به واسطه آن بتوانید، در حجم مورد نظر سفارش خود را تهیه کنید. لازم به ذکر است خرید و فروش تیرآهن بر حسب کیلوگرم و یا شاخه صورت می گیرد در نتیجه مهم است که نرخ موجود چقدر باشد.
نکته ششم: دریافت فاکتور فروش از فروشنده
بسیاری از شرکت هایی که ارائه دهنده مقاطع فولادی هستند، برای خریداران خود فاکتور فروش معتبر صادر می کنند تا به واسطه آن بتوانند تضمین اصالت و کیفیت کالای خریداری شده را برای خریداران تضمین نمایند. از این رو به یاد داشته باشید جایی را که قصد دارید تیرآهن مورد نیاز خود را از آن تهیه کنید، حتما بررسی کنید که برای شما فاکتور فروش صادر کند؛ چرا که در صورت هر خطا و ایرادی در محصول، امکان بازگردانی و یا گرفتن خسارت وجود خواهد داشت.
نکته هفتم: چک کردن محصول با فاکتور دریافتی
نکته که پس از دریافت بار می بایست به آن دقت داشته باشید، این است که باید بار خریداری شده از همه نظر با درخواست شما و فاکتور دریافتی مطابقت داشته باشد. شما باید بار مورد نظر خود را از نظر وزن، کیفیت، کارخانه تولید کننده، پلاک و بندیل و مشخصات ظاهری آن به دقت بررسی نماید و در صورت مشاهده هرگونه مغایرت حتما با فروشنده در تماس باشید.
در آخر باید گفت …
تمام نکات گفته شده در راهنمای خرید تیرآهن به این منوال بود که ابتدا باید نوع تیرآهن مورد نیاز خود را انتخاب نمایید و پس از تعیین حجم مورد نیاز و بررسی قیمت تیرآهن در بازار (با مراجعه به این لینک https://ahanmelal.com/beam/ipe-beam-price قیمت روز را چک کنید) از فروشگاه معتبر، خرید خود را نهایی کنید و در پایان با دریافت فاکتور رسمی و چک نهایی محصول و مطابقت دادن آن با محصول دریافتی، از خرید خود اطمینان یابید.
در یادداشتی اختصاصی برای جام جم آنلاین مطرح شد
در یادداشتی اختصاصی برای جام جم آنلاین مطرح شد
عضو دفتر حفظ و نشر آثار رهبر انقلاب در گفتگو با جام جم آنلاین مطرح کرد
حجتالاسلام سعید داوودی میگوید عفاف بدون حجاب ناقص است و حجاب بدون رعایت عفاف، بیمعنا
«جامجم» در گفتوگو با رئیس مرکز مطالعات منطقهای پاسداری از میراث فرهنگی ناملموس آسیای غربی و مرکزی یونسکو بررسی کرد
شاهین بیانی در گفتوگو با جامجم آنلاین؛